Overview
Welcome to Aprita’s Sudharshana, our latest residential offering at Mahindra World City. Designed with the modern working professional in mind, Sudharshana combines convenience, comfort, and security in one thoughtfully planned community.
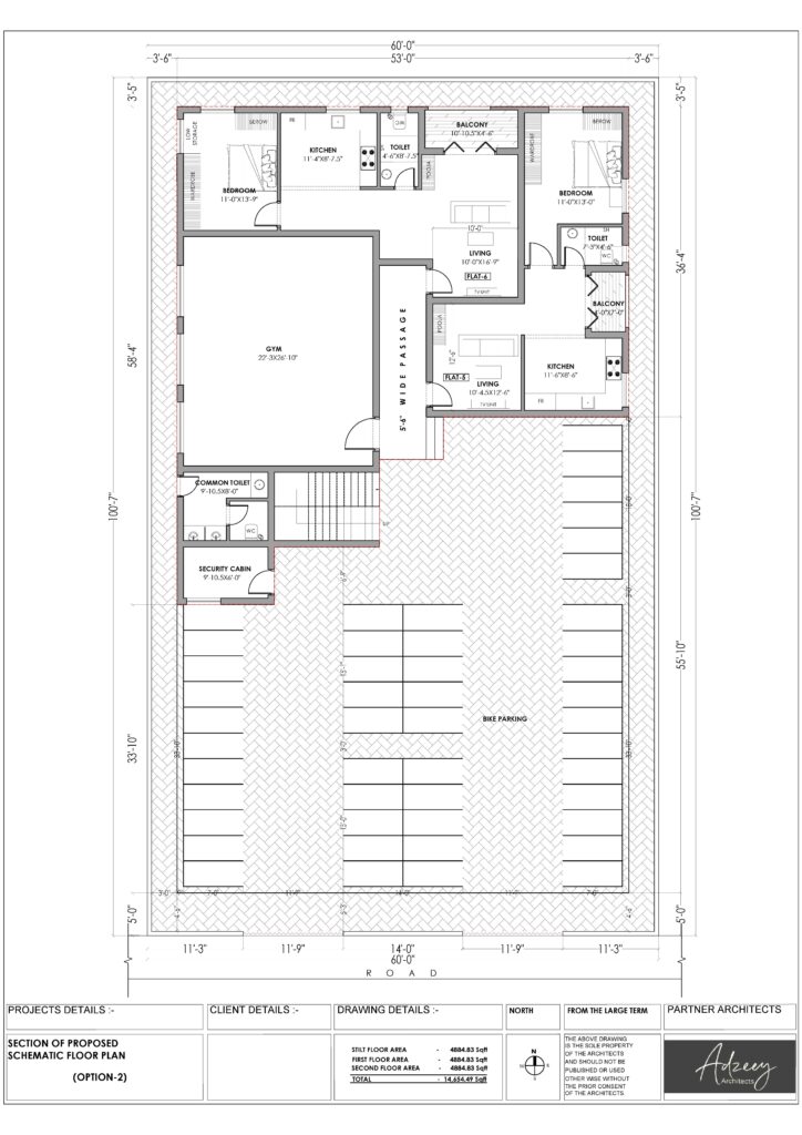
Nestled just 200m from D-Mart, this project spans approximately 10,000 sq. ft. of built-up area and features 16 exclusive 1-BHK service apartments. Each unit is crafted to maximize space efficiency while ensuring a premium living experience.
Sudharshana is more than just a place to stay — it’s a lifestyle choice. With amenities like a fully equipped gym, dedicated caretaker room, and CCTV surveillance, residents enjoy peace of mind and a balanced lifestyle.
Whether you’re a professional seeking proximity to your workplace or a family looking for a secure and connected environment, Sudharshana is destined to be your ideal home at Mahindra World City.
- Status On Going
- Area 1200 to 2400 sqft
- Location Chennai, Tamil Nadu
- Type Residential Building
- Residential Building
Amenities
Aprita Realty brings to you the Building Revolution. It all started with realistic appraisal of
your living needs.
Surveillance System
Ample Water Facility
Covered Parking
Gymnasium
Plans
Location
Address
Sriperumbudur, chennai,Tamil Nadu.
Key transport
- Coast: 300m
- Supermarket: 200m
- Airport: 2,790m
- Hospital: 500m
- Park: 1,500m
- State Bank: 190m
- Railway Station: 1,800m
- University: 250m
- Bus Station: 150m
Enquiry
Wish to get a call back from our team? Fill in your details.
If any of our persons ask for cash payment, kindly call or inform directly at +84418003355
or raise your complain to contact@example.com
